28 / 12 / 2025

avcılar tahtakale imar durumu

avcılar tahtakale imar durumu

İstanbul Avcılar İlçesi, Tahtakale Mahallesi, 654 ada 5 parsel ve 663 ada 1 parsele yönelik hazırlanan 1/1000 ölçekli Uygulama İmar Planı Değişikliği teklifleri askıya çıkarıldı...

Ispartakule'de yol için hazırlanan imar planı değişikliği askıya çıktı!

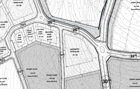
Avcılar Tahtakale'deki Ispartakule Toplu Konut Alanına ilişkin olarak 1/5000 ve 1/1000 ölçekli Revizyon ve İlave imar planları bugün askıya çıktı. Ispartakule'deki 30 metre olarak belirlenen yol 36 metre olarak değiştirildi...

Avcılar Firuzköy’e imar müjdesi!

Avcılar’ın ilk yerleşim yerleri arasında yer falan Firuzköy Mahallesi’nin imar sorunu çözülüyor. Konu ile ilgili müjdeyi Avcılar Belediye Başkanı Utku Caner Çaykara vererek, önemli açıklamalar yaptı. 

İstanbul Büyükşehir’den Avcılar’da imar plan notu değişikliğine onay!

İstanbul’un Avcılar ilçesinde yaşayan binlerce insanın yaşamını kurtaracak İmar Plan Notu Değişikliği, İBB’de  oy birliği ile kabul edildi.

Avcılar Tahtakale'deki rezerv yapı alanın imar planı değişikliği askıda! 

İstanbul İli, Avcılar İlçesi, Firüzköy (Tahtakale) Mahallesi'nde Yer Alan Rezerv Yapı Alanının Bir Kısmına İlişkin 1/5000 Ölçekli Nazım İmar Planı ve 1/1000 Ölçekli Uygulama İmar Planı Değişikliği askıya çıkarıldı.

Avcılar, Bahçelievler ve Pendik’teki imar planları İBB Meclisi'nde onaylandı! Neler değişti?

İBB Başkanı Ekrem İmamoğlu’nu veto ederek tekrar değerlendirilmek üzere İBB Meclisi’ne yolladığı Avcılar, Bahçelievler ve Pendik’teki imar planları, çoğunluktaki AKP-MHP grubunun oyları ile aynen onaylandı. İBB Meclisi’ndeki çoğunluk veto kararlarına karşı ısrarcı oldu. 

40 yıllık imar planındaki kör düğüm çözüldü! Avcılar Yeşilkent muradına erdi! Hiç kimse hak kaybına uğramayacak!

Avcılar Yeşilkent Mahallesi’nin 1/1000 ölçekli İmar Planı IBB Meclisi’nde oybirliğiyle kabul edildi ve mahallelinin 40 yıllık imar sorunu çözülmüş oldu.

Avcılar Tahtakale'deki 1 milyon 670 bin metrekarelik rezerv yapı alanın imar uygulaması onaylandı!

İstanbul İli Avcılar İlçesi Firuzköy Mahallesinde 3194 Sayılı İmar Kanunu’nun 18. Maddesi Hükümlerince Hazırlanan İmar Uygulamasına İlişkin Askı Tutanağı yayımlandı.

Avcılar Firuzköy 1/1000 ölçekli imar planı değişikliği askıya çıkarıldı!

İstanbul İli, Avcılar İlçesi, Firuzköy Mahallesi, 610 Ada, 9 Parsele Ait 1/1000 Ölçekli Uygulama İmar Planı Değişikliği askıya çıkarıldı.

Avcılar Tahtakale Mahallesi Rezerv Yapı Alanı imar planı değişikliği askıda!

İstanbul İli,Avcılar İlçesi,Firüzköy(Tahtakale) Mah,Rezerv Yapı Alanının Bir Kısmına İlişkin 1/5000 Ölçekli Nazım ve 1/1000 Ölçekli Rev. Uygulama İmar Planına Yapılan İtirazlar Kapsamında Hazırlanan 1/5000 ölçekli Nazım ve 1/1000 Ölçekli UİP Değişikliği askıya çıkarıldı.

Avcılar Yeşilkent Mahallesi sakinlerinden imar planı tepkisi!

İstanbul Avcılar'da bulunan Yeşilkent Mahallesi'de yaşayan vatandaşlar İBB'nin imar planını mahallenin mevcut konumu dikkate almadan hazırladığı gerekçesiyle itiraz etti.

Avcılar Yeşilkent Mahallesi 1/5000 ölçekli imar planı askıya çıkarıldı!

Avcılar ilçesi, 1/5000 ölçekli Yeşilkent Mahallesi, Kısmi Revizyon Nazım İmar Planı'na ilişkin 18.12.2021 tasdik tarihli plan askıya çıkarıldı.

Avcılar Tahtakale Mahallesi Rezerv Yapı Alanı 1/5000 ölçekli imar planı askıda!

İstanbul İli, Avcılar İlçesi, Firüzköy (Tahtakale) Mahallesi’nde Yer Alan Rezerv Yapı Alanının Bir Kısmına İlişkin 1/5000 Ölçekli Revizyon Nazım ve 1/1000 Ölçekli Revizyon Uygulama İmar Planı askıya çıkarıldı.

Avcılar Tahtakale Mahallesi'nin imar sorunu çözüldü!

Çevre, Şehircilik ve İklim Değişikliği Bakanı Murat Kurum sosyal medya hesabından yaptığı açıklamayla İstanbul Avcılar'daki Tahtakale Mahallesi'nin imar probleminin çözüme kavuştuğunu duyurdu.

Avcılar'ın 40 yıllık imar sorunu çözüldü!

Avcılar’ın 40 senedir imar bekleyen Yeşilkent mahallesinin imar planı sorunu sonunda çözüldü. Yeşilkent mahallesinin yaklaşık 40 senedir imar beklediğine dikkat çeken Turan Hançerli, 100 bin insanı kapsayan 40 yıllık sorunun çözüldüğünü belirterek, katkı sağlayanlara teşekkür etti.

avcılar tahtakale imar durumu Haberi

avcılar tahtakale imar durumu


İstanbul Avcılar İlçesi, Tahtakale Mahallesi, 654 ada 5 parsel ve 663 ada 1 parsele yönelik hazırlanan 1/1000 ölçekli Uygulama İmar Planı Değişikliği teklifleri ile Plan Açıklama Raporları, bakanlık tarafından 12 Aralık 2016 tarihinde onaylandı.


Bugün askıya çıkarılan Avcılar Tahtakale 1/1000 ölçekli Uygulama İmar Planı Değişikliği 18 Ocak 2017 tarihinde askıdan indirilecek.



İmar planı ve raporları için...