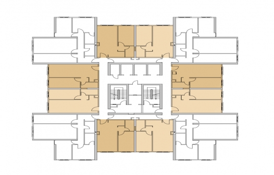
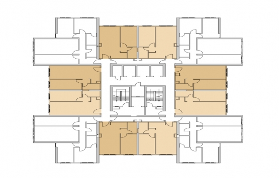
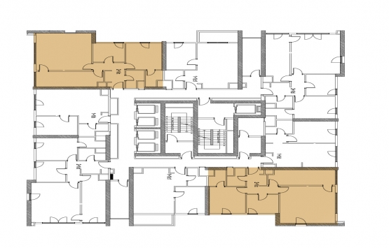
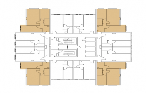
Ödül İstanbul kat planları!
Firma: Özyurtlar İnşaat
Proje: Ödül İstanbul
Ödül İstanbul kat planları hakkında detaylar haberimizde yer alıyor. Özyurtlar İnşaat tarafından yükselen projede 1+1, 2+1 ve 3+1 şeklinde daire tipleri sunuluyor.
İstanbul Avrupa Yakası Beylikdüzü'nde inşa edilen Ödül İstanbul projesi Özyurtlar İnşaat imzasını taşıyor. 362 bin 584 metrekare inşaat alanına sahip projede 2 bin 683 konut ve 102 ticari ünite yer alıyor.
Ödül İstanbul projesinde 1+1, 2+1, 3+1 şeklinde daire tipleri sunuluyor. Dairelerin alanları 64 metrekare ile 164 metrekare arasında değişiklik gösteriyor.
Ödül İstanbul fiyat listesi:
1+1 daireler 238 bin TL
2+1 daireler 358 bin TL'den satışa sunuluyor.
1+1 dairelerde 59 bin TL peşin ödeme yapıldığında 48 ay 2 bin 500 TL,
2+1 dairelerde 88 bin TL peşin ödeme yapıldığında 48 ay 3 bin 800 TL taksit ödemesi yapılıyor.
Ödül İstanbul kat planları!
1+1A

1+1 C

1+1 C Teras

2+1 A

2+1 A Teras

2+1 D

2+1 E

3+1 A

250 milyon dolar yatırım bedeline sahip projede tenis, kortu, futbol-basketbol sahaları, fitness salonu, çocuk parkı, çocuk kulübü, parti salonu, yüzme havuzu, güzellik salonu, resepsiyon ve 7/24 güvenlik hizmeti, açık-kapalı otopark yer alıyor.
2019 yılında teslim edilmesi öngörülen Ödül İstanbul projesinde 900 metrekarelik sosyal alan bin 550 metrekarelik gezi bahçesi ile toplam 2 bin 450 metrekare yeşil alan bulunuyor.
Tel: 0850 460 90 96
Web: http://www.odulistanbul.com/
Ezgi Delibeyoğlu/Emlakkulisi.com
