Dumankaya Modern'in kat planları nasıl?
Dumankaya Modern'in kat planlarını haberimizde bulabilirsiniz
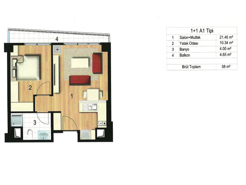
Dumankaya tarafından Bahçeşehir'de inşa edilen Dumankaya Modern'in kat planları:




Dumankaya kat planları için tıklayınız




Dumankaya kat planları için tıklayınız
0216 444 7 222
İclal Süzgün/Emlakkulisi.com
YASAL UYARI : Haber sitemiz 5846 sayılı Fikir ve Sanat Eserleri Kanunu'na uygun olarak yayın yapmaktadır. Sitemizde yayınlanan haber ve fotoğraflar, ilgili sayfamıza link verilmek koşuluyla yayınlanabilir. Aksi durumlarda art niyetli kişi ve/veya kuruluşlar ile ilgili her türlü yasal haklarımız saklıdır.