07 / 12 / 2025

Elbistan Şeker Fabrikası’nın arsasının imar planları onaylandı!

Elbistan Şeker Fabrikası’nın arsasının imar planları onaylandı!

Elbistan Şeker Fabrikası’nın arsasının imar planları Cumhurbaşkanı Recep Tayyip Erdoğan tarafından onaylandı.


1.2 milyon TL'ye 190 metrekare net tarla! 600.000 TL peşin! 50.000 taksitle! Son 7 parsel!.


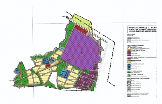
Özelleştirilen Elbistan Şeker Fabrikası’nın fabrika alanı dışında kalan arsası için hazırlanan imar planı Cumhurbaşkanı tarafından onaylandı.

Elbistan'ın Sesi Gazetesi'nde yer alan habere göre; Özelleştirilen Elbistan Şeker Fabrikası’nın fabrika alanı dışında kalan arsasında Özelleştirme İdaresi Başkanlığı tarafından (ÖİB) hazırlanan imar planları, revizyonun ardından Cumhurbaşkanı Recep Tayyip Erdoğan tarafından onaylandı. Karar Resmi Gazete'de yayınlandı.

Elbistan Şeker Fabrikası’nın arsasının imar planları onaylandı! 


Geri Dön