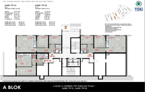
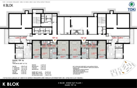
TOKİ Kayaşehir 18. Bölge kat planları!
TOKİ Kayaşehir 18. Bölge'de aylık 539 TL taksitlerle konut sahibi olunabiliyor. Projede 1+1'den 4+1'e kadar farklı daire seçeneklerine yer veriliyor. İşte TOKİ Kayaşehir 18. Bölge kat planları...
Toplam 1.100 adet konutun satışa sunulduğu TOKİ Kayaşehir 18. Bölge 1. ve 2. Etap ile 19. Bölge'de daire fiyatları 107 bin 800 TL ile 398 bin 458 TL arasında farklılık gösteriyor.
TOKİ Kayaşehir 18. Bölge konut tipleri 1 oda 1 salon, 2 oda 1 salon, 3 oda 1 salon ve 4 oda 1 salon olarak tasarlandı. Başvuru süresi 30 Nisan'da sona erecek olan projede başvuru bedeli olarak 5 bin TL ödeniyor.
TOKİ Kayaşehir 18. Bölge ödeme koşulları!
- Yüzde 15'lik kısım peşin olarak ödendiğinde; kalan daire bedeli 96 ay,
- Yüzde 20'lik kısım peşin olarak ödendiğinde; kalan daire bedeli 96 ay veya 108 ay,
- Yüzde 25 veya yüzde 40'lık kısım peşin olarak ödendiğinde; kalan daire bedeli 96 ay, 108 ay veya 120 ay vadelendiriliyor.
TOKİ Kayaşehir 18. Bölge başvuruları Türkiye Halk Bankası A.Ş’nin İstanbul İli’ndeki tüm şubeleri aracılığıyla kabul ediliyor. Projede 16 bin 170 TL peşinat ile ödeme yapılabiliyor.
TOKİ Kayaşehir 18. Bölge kat planları!






TOKİ Kayaşehir 18. Bölge satış duyurusu için tıklayın
TOKİ Kayaşehir 18. Bölge 1. Etap fiyat listesi için tıklayın
TOKİ Kayaşehir 18. Bölge 2. Etap fiyat listesi için tıklayın
30 soruda TOKİ Kayaşehir'in yeni kampanyası için tıklayın!
Özge ÇAKIR/Emlakkulisi.com