Abdullah Ağa Vakfı Altunizade Oteli için düğmeye basıldı!
18 yıldır otel yapılması istenen Abdullah Ağa Vakfı'nın Altunizade arazisi üzerinde planlanan otel projesi için düğmeye basıldı..
Yıllardır tartışmalara konu olan Abdullahağa Vakfı Üsküdar Altunizade arazisi üzerinde planlanan otel projesi için düğmeye basıldı. Bakanlık tarafından “Çevresel Etki Değerlendirmesi Gerekli Değildir” kararı alınan otel projesi 98 milyon 750 bin TL'ye mal olacak.
332 odalı olarak planlanan Abdullah Ağa Vakfı Altunizade Oteli, 8 bin 822,09 metrekarelik tapulu alanda yükselecek.
Proje kapsamında 5 adet bodrum kat, zemin kat, 3 adet normal kat ve çatı katı yapılacak. Standart odalar 23 metrekare oda ve 5,2 metrekare banyo; apartlar ise 45 metrekare ile 93 metrekare arasında değişkenlik gösterecek. Çatı katında ise 135,8 metrekarelik alanda ofisler olacak.
Toplam inşaat alanı 50 bin 838,1 metrekare olan otelin 5. bodrum kat ve 4. bodrum katına sırasıyla 103 ve 83 araç kapasiteli olmak üzere toplam 186 araç kapasiteli otopark yapılacak.
Proje kapsamında otele ait kapalı havuz, jakuzi, buhar odaları, lobi salonları, saunalar, pastahane, restaurant, etkinlik alanı, business balo salonu, küçük balo salonu ve toplantı odaları yer alacak.
Abdullah Ağa Vakfı Altunizade Oteli'nin inşaat aşaması yaklaşık 25 ayda tamamlanacak.

İmar planı 2015'te onaylandı
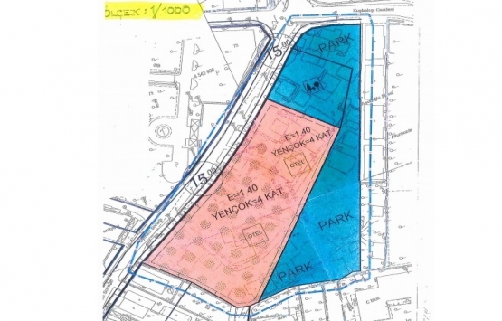
1/1.000 Ölçekli Uygulama İmar Planı, Lejantı ve Plan Notlarına göre “Otel Alanı” olarak geçiyor.

1991’deki planlarda Abdullah Ağa Vakfı adına kayıtlı arazinin, 4 bin 720 metrekaresi konut, 13 bin 200 metrekaresi park alanı olarak belirlendi. Vakıflar Müdürlüğü 2012’de bir imar planı değişikliği teklifinde bulunarak alanın 9 bin 920 metrekarelik kısmının yeşil alan, 8 bin metrekarelik kısmının 15.50 metre yüksekliğinde otel yapılacak şekilde düzenlenmesini önerdi.
Plan değişikliğine İBB İmar ve Şehircilik Daire Başkanlığı Planlama Müdürlüğü’nün yeşil alanı azalttığı, Ulaşım Daire Başkanlığı’nın da trafiği arttırdığı gerekçesiyle olumsuz görüş vermesine karşın teklif İBB Meclisi’nden 31 Ekim 2014’te geçti.
Söz konusu alana ilişkin imar planı 2015 yılında onaylandı. İmar planı ile bu tapu alanı üzerinde otel alanı, park alanı ve rekreasyon alanları belirlendi.

Faaliyet alanının 181 metre kuzeydoğusunda İstanbul Çevre Yolu bulunuyor. En yakın yerleşim yeri ise 75 metre güneydoğusunda bulunuyor.

Işıl Seren KESKİN/Emlakkulisi.com