Emlak Konut GYO Kuzey Yakası'nın değeri ne kadar?
Emlak Konut GYO'nun Kuzey Yakası projesi için hazırlatılan Gayrimenkul Değerleme Raporu yayınlandı. Peki Emlak Konut GYO Kuzey Yakası'nın değeri ne kadar?
Emlak Konut Gayrimenkul Yatırım Ortaklığı (GYO), Kamuyu Aydınlatma Platformu'nda (KAP) Kuzey Yakası Değerleme Raporu hakkında açıklama yaptı.
Emlak Konut GYO'nun Kuzey Yakası projesi için hazırlatılan Gayrimenkul Değerleme Raporu yayınlandı.

Taşınmazların Son Üç Yıllık Dönemde Gerçekleşen Alım Satım İşlemleri
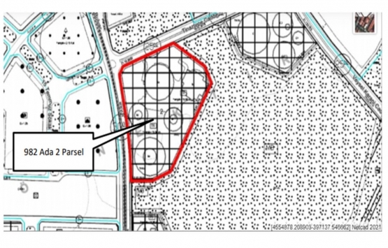
Değerleme konusu taşınmazların bulunduğu 982 adanın eski ada numarası 888 olup, 1 parselin eski parsel numarası; 2 parselin eski parsel numarası 3, 3 parselin eski parsel numarası 4 ve 4 parselin eski parsel numarası 5'tir. 888 ada 2, 3, 4 ve 5 parseller 888 ada 1 parselin imar uygulaması görmesi sonucu oluştu.
888 ada 1 no'lu parsel T.C. Başbakanlık Toplu Konut İdaresi Başkanlığı mülkiyetinde iken 05 Eylül 2016 tarihinde yapılan imar uygulaması sonucunda oluşan parseller Emlak Konut Gayrimenkul Yatırım Ortaklığı A.Ş. adına tescil edildi. İmar uygulaması sonucu oluşan 888 ada 2, 3, 4 ve 5 parseller yeniden imar uygulaması görerek 14.02.2017 tarih ve 2952 yevmiye numarası ile Emlak Konut Gayrimenkul Yatırım Ortaklığı A.Ş. adına tescil edilen 982 ada 1, 2, 3 ve 4 parseller oluştu.

Ulaşım bilgisi
Kuzey Yakası projesi, İstanbul İli, Başakşehir İlçesi Kayabaşı Mahallesi'nde yer alıyor. Ulaşım özel araç ve toplu taşıma araçları ile sağlanmaktadır. Taşınmazlara ulaşım toplu taşıma araçları ile Adnan Menderes Bulvarı ya da Kayaşehir Bulvarı üzerinden geçen toplu taşıma araçları ile; özel araçlar ile Anadolu Yakasından O-3 Otoyolu üzerinden sırasıyla O-7 Otoyolu, Kanuni Sultan Süleyman Caddesi, İkitelli-Gaziosmanpaşa Yolu, Atilla Altıkat Caddesi, Gazi Mustafa Kemal Bulvarı ve Adnan Menderes Bulvarı ile sağlanıyor. Taşınmazlar Metrokent Metroya 4,5 kilometre uzaklıkta yer alıyor.
Emlak Konut GYO'nun KAP açıklaması:
"İstanbul Başakşehir Kayabaşı Rekreasyon Alanı Ticaret ve Bölge Parkı İnşaatları İle Altyapı ve Çevre Düzenleme İşi" kapsamında "Kuzey Yakası" projesi 982 ada 2 parsel için hazırlatılan "Gayrimenkul Değerleme Raporu" ekte yer almaktadır.
Değerleme raporu için tıklayın