18 / 12 / 2025

Kültür ve Turizm Bakanlığı'ndan 'Belek imar planı' açıklaması!

Kültür ve Turizm Bakanlığı'ndan 'Belek imar planı' açıklaması!

Antalya Belek'te yapılan imar planı değişikliği günübirlik alan niteliğindeki arazilerin bir kısmını 3 ayrı otel için yapılaşmaya açtı. Konuyla ilgili Kültür ve Turizm Bakanlığı'ndan açıklama geldi.


1.2 milyon TL'ye 190 metrekare net tarla! 600.000 TL peşin! 50.000 taksitle! Son 7 parsel!.


Oda TV yazarı Yusuf Yavuz, bugünkü yazısında Kültür ve Turizm Bakanlığı'nın Belek'te yapılan imar planı değişikliğiyle ilgili yaptığı açıklamayı kaleme aldı...

Antalya Belek'te yapılan imar planı değişikliği ile orman yangın üssü ve günübirlik alan niteliğindeki arazilerin bir kısmını 3 ayrı otel için yapılaşmaya açan Kültür ve Turizm Bakanlığı, konuyu gündeme getiren haberimizin ardından bir açıklama yaptı. Açıklamada, Kültür ve Turizm Bakanlığı'nın, bu yaz sezonuna kadar tamamlamayı planladığı iki ücretsiz halk plajı için çalışma başlattığı kaydedildi. Bakanlık tarafından yürütülen proje kapsamında Belek bin kişilik, Kadriye’de ise 3 bin kişilik iki ayrı halk plajının hizmete gireceği açıklandı.

BAKANLIKTAN BELEK VE KADRİYE'DE ÜCRETSİZ PLAJ PROJESİ

Kültür ve Turizm Bakanlığı'nın konuyla ilgili duyurusunda, “Bakanlık tarafından yürütülen proje kapsamında; Belek Halk Plajı ile Kadriye Halk Plajı ve Mesire Alanı, zengin olanaklar sunan sosyal alanlar olarak hizmet vermeye başlayacak. Tesislerde; plaj alanından restoranlara, otoparktan yöresel ürün pazarına kadar pek çok hizmet sunulacak” ifadelerine yer verildi.

OTOPARK, MESİRE ALANI, KAFE VE RESTORAN YAPILACAK

Proje tamamlandığında, Belek’te 1000 kişilik ücretsiz plaj alanı, 450 araç kapasiteli otopark, kafe ve restoranlar, çok amaçlı spor sahaları, yöresel ürünler halk pazarı ile hizmete gireceği kaydedilen duyuruda, “Kadriye Ücretsiz Halk Plajı ve Mesire Alanı ise; piknik için elverişli, 16.000 metrekarelik mesire alanı, 3000 kişilik ücretsiz halk plajı, 570 araç kapasiteli otopark, kültür ve sanat aktiviteleri, kafe, restoran ve pastane, spor ve etkinlik alanları, yöresel ürünler halk pazarı gibi olanaklar ile hizmet verecek. Plajlar engelli vatandaşların kullanımına uygun olarak tasarlanacak. Ayrıca doğa ile dost bir strateji izleyen Bakanlık, her iki plajda da, nesli tükenmek üzere olan ve koruma altına alınan caretta caretta kaplumbağaları için koruma ve tedavi merkezlerine yer verecek” denildi.

Kültür ve Turizm Bakanlığı ndan Belek imar planı açıklaması! 

Kültür ve Turizm Bakanlığı ndan Belek imar planı açıklaması! 

NE OLMUŞTU

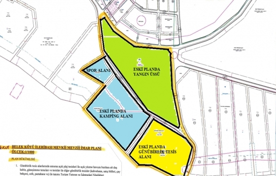
Antalya’nın Serik ilçesi sınırlarında bulunan Belek sahilinde yapılan imar planı değişikliği, Kültür ve Turizm Bakanlığı’nca onaylanarak 7 Şubat’ta Serik Belediyesi’nce askıya çıkarılmıştı. Bir kısmı Ormana ait olan, bir kısmı ise Kültür ve Turizm Bakanlığı bünyesindeki bulunan ancak daha önce Serik Belediyesi’ne tahsis edilen arazilerde yapılan imar planı değişikliğine göre, Serik Belediyesi’ne tahsis edilen ve daha önceki planda kamping, günübirlik alan, spor alanı ve orman yangın üssü olarak ayrılan Belek’teki 3 ayrı parsel ‘Günübirlik Tesis Alanı’, ‘Turizm Tesisi Alanı’ olarak belirlenirken, ‘Orman Yangın Üssü’ olan parselin büyük bölümü de yapılaşmaya açılmıştı. Kadriye Mahallesi sahilindeki günübirlik kullanım alanı ile golf ve konaklama alanında yapılan imar planı değişikliği ile de bu arazinin bir kısmı ‘Turizm Tesis Alanı’na dönüştürülerek otel inşaatına açıldı. Kültür ve Turizm Bakanlığı’nın planlama yetkisinde olan alandaki imar planı değişikliği ile yaklaşık 20 kilometre kıyı şeridine sahip olan ve yaz ayarlında nüfusu 150 bini bulan Serik’te halkın doğrudan denizden yararlanabileceği yaklaşık 500 metrelik bir alan bırakılmış, uygulama ilçe halkının tepkisini çekmişti.

BAKANLIĞA SOSYAL MEDYADAN ELEŞTİRİ GELDİ

Öte yandan Kültür ve Turizm Bakanlığı’nın ücretsiz halk plajı projesi sosyal medya kullanıcılarının da tepkisini çekti. Bakanlığın resmi Twitter hesabından da duyurulan ‘ücretsiz plaj’ projesiyle ilgili tepkilerini dile getirdiler. Daha önce halkın kullanımı için ayrılan alanların yapılan imar planı değişikliği ile otellere açılmasını eleştiren sosyal medya kullanıcıları, bu durumun kabul edilemez olduğunu savundu.


Geri Dön