15 / 12 / 2025

Ölçülendirme kuralları nelerdir?

Ölçülendirme kuralları nelerdir?

Ölçülendirme nedir? Ölçülendirme kuralları nelerdir? Yanıtı ve detayları için haberimizi inceleyebilirsiniz...


1.2 milyon TL'ye 190 metrekare net tarla! 600.000 TL peşin! 50.000 taksitle! Son 7 parsel!.


Ölçülendirme kuralları nelerdir?

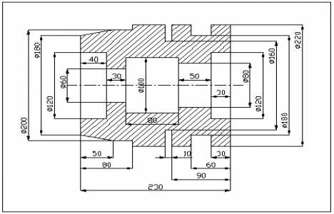
Ölçülendirme, bir projenin alanlarını ve tipini belirlemeye yarayan tekniğe deniyor. Yapı projelerinde ölçüler santimetre cinsinden yazılmaktadır.


Bir projenin, tüm ayrıntılarını tam olarak veren resimleri çizilmiş, gerekli açıklama yazıları yazılmış olsa dahi uygulayıcıya boyutların ölçüsü tekniğine uygun olarak ve eksiksiz bir şekilde yazılıp verilmediği takdirde o proje istenilen doğrulukta ve amacına uygun yapılamıyor.


Bir yapının, projelerinin hazırlanmasında ve uygulanmasında; mimar, inşaat, makine ve elektrik mühendisleri ile bunların yardımcıları, beraber çalışıyor. Bu nedenle, çizimle ifade edişte, özellikle ölçülendirmede aynı standartlara uymaları gerekiyor.


Ölçülendirme kuralları nelerdir?

Ölçü çizgisi

Ölçüsü verilecek boyuta paralel olarak çizilen ve üzerine ölçü rakamı yazılan çizgiye deniyor.


Bağlama çizgisi

Ölçü çizgisini, ilgili olduğu boyuta bağlayan ve ölçüsü verilen boyutun nereden başlayıp nereye kadar gittiğini gösteren çizgiyi ifade ediyor.


Ölçü çizgisi sınırları

Ölçü çizgisi ile bağlama çizgisinin kesiştiği yeri belirten veya ölçüsü verilen boyutun nereden başlayıp nereye kadar gittiğini daha belirgin bir şekilde ifade etmeye yarayan işarete deniyor.


Ölçü rakamı

Ölçüsü verilecek boyutun değerini gösteren ve genellikle ölçü çizgisinin ortasına ve biraz üstüne yazılan rakam olarak ifade ediliyor.


Ölçülere eklenen harf ve semboller

Bazı özel hallerde ölçü rakamının neyi ifade etmek istediğini belirtmek ve çizimle anlatım gücünü artırmak için kullanılan harf veya sembollere deniyor.





Işıl Seren KESKİN/Emlakkulisi.com



Geri Dön