Folkart Konak projesi başlıyor! Folkart'tan İzmir'e 292 konut ve 398 rezidans geliyor!
Yeni yatırımlar için düğmeye basan Folkart, İzmir Konak'ta 292 konut ve 398 rezidans hayata geçirecek. İşte Folkart Konak projesi ile ilgili merak edilen detaylar...
139 adet 1 oda 1 salon, 73 adet 2 oda 1 salon, 45 adet 3 oda 1 salon, 32 adet 4 oda 1 salon, tripleks ve dubleks dairelerin yer aldığı Folkart Konak projesinin 2025 yılında tamamlanması planlanıyor.
8667 ada 8 numaralı parsel alanı tapu kaydında “Bahçeli Kargir Gözlük Fabrikası ve arsası” şeklinde geçiyor. Proje alanında yer alan yapılar daha önceden kaldırıldı.

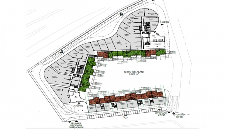
Zemin Kat Yerleşim Görünümü
Folkart Yapı Folkart Konak projesinin kuzey sınır hattı boyunca Ankara caddesi yan yolu geçmekte olup, bölge ticari hareketliliği ve ulaşılabilirliği yüksek bir alanda bulunuyor.
Folkart Konak'ın yakın çevresinde, iş merkezleri, İzmir Bölge Adliye Mahkemesi, Cami ve 3. Sanayi sitesi bulunuyor. Proje alanı Konak Belediyesi’nin bulunduğu ilçe merkezine yaklaşık olarak 5 kilometre uzaklıkta bulunuyor.
Söz konusu alanın batısında İzmir Limanı, kuzeyinde yeni kent merkezi ve içerisindeki birçok prestijli karma kullanım projeleri; Ege Perla, Mistral, Folkart Towers vb. ile beraber İzmir Adliyesi, güneyinde İzmir Bölge Adliye Mahkemesi ve Çınarlı Mesleki ve Teknik Anadolu Lisesi, doğusunda ise 3. Sanayi Sitesi bulunuyor.
Folkart Yapı Folkart Konak projesinin sosyal alanları arasında; 1.247 araçlık otopark, kapalı ve açık havuz, Spa, çocuk oyun alanı, sauna, fitness yer alacak.
Folkart Konak 18 soruda tüm detaylarıyla!
Folkart Vega'da anahtar teslimleri başladı!